倉庫 準工業地域!次屋3丁目
up

  • 賃料
    132万円 (うち消費税12万円)
  • 種別
    倉庫
  • 礼金
    396万円
  • 所在地
    兵庫県尼崎市次屋3丁目  
  • 交通
    JR東海道・山陽本線 尼崎駅 徒歩20分

物件詳細

築年月1982/8 新築/中古
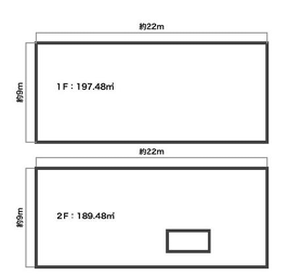
面積 386.96m² 計測方式
バルコニー 向き
建物階数 部屋階数
建物構造 鉄骨造
間取内容
駐車場 取引態様 仲介
引渡/入居時期 相談 現況
地目 用途地域 準工業
周辺環境
設備・条件
物件番号 41

園田橋沿い!

対象部分はB部分になりAC部分については別途相談となります!

1階197.48㎡、2階189.48㎡

駐車場近隣22,000円/月 空き3台

バイク置場、駐輪場あり

※物件掲載内容と現況に相違がある場合は現況を優先と致します。
物件お問合せ